CHƯƠNG I. VẼ KĨ THUẬT
- Giải bài tập công nghệ lớp 8 kết nối tri thức bài 1 Một số tiêu chuẩn trình bày bản vẽ kĩ thuật
- Giải bài tập công nghệ lớp 8 kết nối tri thức bài 2 Hình chiếu vuông góc
- Giải bài tập công nghệ lớp 8 kết nối tri thức bài 3 Bản vẽ chi tiết
- Giải bài tập công nghệ lớp 8 kết nối tri thức bài 4 Bản vẽ lắp
- Giải bài tập công nghệ lớp 8 kết nối tri thức bài 5 Bản vẽ nhà
- Giải bài tập công nghệ lớp 8 kết nối tri thức bài Ôn tập chương I
CHƯƠNG II. CƠ KHÍ
- Giải bài tập công nghệ lớp 8 kết nối tri thức bài 6 Vật liệu cơ khí
- Giải bài tập công nghệ lớp 8 kết nối tri thức bài 7 Truyền và biến đổi chuyển động
- Giải bài tập công nghệ lớp 8 kết nối tri thức bài 8 Gia công cơ khí bằng tay
- Giải bài tập công nghệ lớp 8 kết nối tri thức bài 9 Ngành nghề trong lĩnh vực cơ khí
- Giải bài tập công nghệ lớp 8 kết nối tri thức bài Ôn tập chương II
CHƯƠNG III. AN TOÀN ĐIỆN
CHƯƠNG IV. KĨ THUẬT ĐIỆN
- Giải bài tập công nghệ lớp 8 kết nối tri thức bài 14 Khái quát về mạch điện
- Giải bài tập công nghệ lớp 8 kết nối tri thức bài 15 Cảm biến và mô đun cảm biến
- Giải bài tập công nghệ lớp 8 kết nối tri thức bài 16 Mạch điện điều khiển sử dụng mô đun cảm biến
- Giải bài tập công nghệ lớp 8 kết nối tri thức bài 17 Ngành nghề trong lĩnh vực kĩ thuật điện
- Giải bài tập công nghệ lớp 8 kết nối tri thức bài Ôn tập chương IV
Giải bài tập công nghệ lớp 8 kết nối tri thức bài 3 Bản vẽ chi tiết
https://s.shopee.vn/AKN2JyAJAw
Giải bài 3 Bản vẽ chi tiết sách công nghệ lớp 8 kết nối
Trong bài viết này, chúng ta sẽ cùng tìm hiểu và giải bài tập trong sách công nghệ lớp 8 kết nối. Chúng ta sẽ được hướng dẫn chi tiết từng bước giải và hiểu rõ hơn về kiến thức trong chương trình học. Hy vọng, thông qua nội dung này, các em học sinh sẽ nắm vững bài học một cách dễ dàng hơn.
Mục tiêu của chúng ta là giúp các em hiểu rõ và áp dụng kiến thức một cách linh hoạt. Qua đó, giúp các em tự tin hơn khi giải các bài tập và áp dụng kiến thức trong cuộc sống thực tế. Hãy cùng nhau khám phá và học hỏi nhé!
Bài tập và hướng dẫn giải
I. NỘI DUNG CỦA BẢN VẼ CHI TIẾT
Khám phá
Câu hỏi: Quan sát Hình 3.3 và cho biết tên gọi của chi tiết được biểu diễn trong hình là gì; hãy mô tả hình dạng, kích thước và các yêu cầu kĩ thuật của chi tiết đó.

THỰC HÀNH
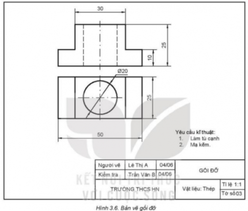
Câu hỏi: Đọc bản vẽ chi tiết gối đỡ (Hình 3.6) theo trình tự trên Bảng 3.1.

Giải bài tập sách giáo khoa (SGK) lớp 8 kết nối tri thức
- Soạn văn lớp 8 kết nối tri thức
- Soạn văn lớp 8 tập 1 kết nối tri thức
- Soạn văn lớp 8 tập 2 kết nối tri thức
- Giải bài tập toán lớp 8 kết nối tri thức
- Giải bài tập toán lớp 8 tập 1 kết nối tri thức
- Giải bài tập toán lớp 8 tập 2 kết nối tri thức
- Giải bài tập khoa học tự nhiên lớp 8 kết nối tri thức
- Giải bài tập hóa học lớp 8 kết nối tri thức
- Giải bài tập vật lí lớp 8 kết nối tri thức
- Giải bài tập sinh học lớp 8 kết nối tri thức
- Giải bài tập lịch sử và địa lí lớp 8 kết nối tri thức
- Giải bài tập công dân lớp 8 kết nối tri thức
- Giải bài tập công nghệ lớp 8 kết nối tri thức
- Giải bài tập tin học lớp 8 kết nối tri thức
- Giải bài tập mĩ thuật lớp 8 kết nối tri thức
- Giải bài tập âm nhạc lớp 8 kết nối tri thức
- Giải bài tập hoạt động trải nghiệm lớp 8 kết nối tri thức
Giải bài tập sách giáo khoa (SGK) lớp 8 chân trời sáng tạo
- Soạn văn lớp 8 chân trời sáng tạo
- Soạn văn lớp 8 tập 1 chân trời sáng tạo
- Soạn văn lớp 8 tập 2 chân trời sáng tạo
- Giải bài tập toán lớp 8 chân trời sáng tạo
- Giải bài tập toán lớp 8 tập 1 chân trời sáng tạo
- Giải bài tập toán lớp 8 tập 2 chân trời sáng tạo
- Giải bài tập lịch sử và địa lí lớp 8 chân trời sáng tạo
- Giải bài tập công dân lớp 8 chân trời sáng tạo
- Giải bài tập công nghệ lớp 8 chân trời sáng tạo
- Giải bài tập tin học lớp 8 chân trời sáng tạo
- Giải bài tập âm nhạc lớp 8 chân trời sáng tạo
- Giải bài tập mĩ thuật lớp 8 chân trời sáng tạo bản 1
- Giải bài tập mĩ thuật lớp 8 chân trời sáng tạo bản 2
- Giải bài tập hoạt động trải nghiệm lớp 8 chân trời sáng tạo bản 1
- Giải bài tập hoạt động trải nghiệm lớp 8 chân trời sáng tạo bản 2
Giải bài tập sách giáo khoa (SGK) lớp 8 cánh diều
- Soạn văn lớp 8 cánh diều
- Soạn văn lớp 8 tập 1 cánh diều
- Soạn văn lớp 8 tập 2 cánh diều
- Giải bài tập toán lớp 8 cánh diều
- Giải bài tập toán lớp 8 tập 1 cánh diều
- Giải bài tập toán lớp 8 tập 2 cánh diều
- Giải bài tập khoa học tự nhiên lớp 8 cánh diều
- Giải bài tập hóa học lớp 8 cánh diều
- Giải bài tập vật lí lớp 8 cánh diều
- Giải bài tập sinh học lớp 8 cánh diều
- Giải bài tập lịch sử và địa lí lớp 8 cánh diều
- Giải bài tập công dân lớp 8 cánh diều
- Giải bài tập công nghệ lớp 8 cánh diều
- Giải bài tập tin học lớp 8 cánh diều
- Giải bài tập mĩ thuật lớp 8 cánh diều
- Giải bài tập âm nhạc lớp 8 cánh diều
- Giải bài tập hoạt động trải nghiệm lớp 8 cánh diều
Giải bài tập sách bài tập (SBT) lớp 8 kết nối tri thức
- Soạn sách bài tập (SBT) ngữ văn lớp 8 kết nối tri thức
- Soạn sách bài tập (SBT) ngữ văn lớp 8 tập 1 kết nối tri thức
- Soạn sách bài tập (SBT) ngữ văn lớp 8 tập 2 kết nối tri thức
- Giải bài tập sách bài tập (SBT) toán lớp 8 kết nối tri thức
- Giải bài tập sách bài tập (SBT) toán lớp 8 tập 1 kết nối tri thức
- Giải bài tập sách bài tập (SBT) toán lớp 8 tập 2 kết nối tri thức
- Giải bài tập sách bài tập (SBT) khoa học tự nhiên lớp 8 kết nối tri thức
- Giải bài tập sách bài tập (SBT) hóa học lớp 8 kết nối tri thức
- Giải bài tập sách bài tập (SBT) vật lí lớp 8 kết nối tri thức
- Giải bài tập sách bài tập (SBT) sinh học lớp 8 kết nối tri thức
- Giải bài tập sách bài tập (SBT) lịch sử và địa lí lớp 8 kết nối tri thức
- Giải bài tập sách bài tập (SBT) công dân lớp 8 kết nối tri thức
- Giải bài tập sách bài tập (SBT) công nghệ lớp 8 kết nối tri thức
- Giải bài tập sách bài tập (SBT) tin học lớp 8 kết nối tri thức
- Giải bài tập sách bài tập (SBT) âm nhạc lớp 8 kết nối tri thức
- Giải bài tập sách bài tập (SBT) mĩ thuật lớp 8 kết nối tri thức
- Giải bài tập sách bài tập (SBT) hoạt động trải nghiệm lớp 8 kết nối tri thức
Giải bài tập sách bài tập (SBT) lớp 8 chân trời sáng tạo
- Soạn sách bài tập (SBT) ngữ văn lớp 8 tập 1 chân trời sáng tạo
- Soạn sách bài tập (SBT) ngữ văn lớp 8 tập 2 chân trời sáng tạo
- Giải bài tập sách bài tập (SBT) toán lớp 8 chân trời sáng tạo
- Giải bài tập sách bài tập (SBT) toán lớp 8 tập 1 chân trời sáng tạo
- Giải bài tập sách bài tập (SBT) toán lớp 8 tập 2 chân trời sáng tạo
- Giải bài tập sách bài tập (SBT) lịch sử và địa lí lớp 8 chân trời sáng tạo
- Giải bài tập sách bài tập (SBT) công dân lớp 8 chân trời sáng tạo
- Giải bài tập sách bài tập (SBT) tin học lớp 8 chân trời sáng tạo
- Giải bài tập sách bài tập (SBT) công nghệ lớp 8 chân trời sáng tạo
- Giải bài tập sách bài tập (SBT) âm nhạc lớp 8 chân trời sáng tạo
- Giải bài tập sách bài tập (SBT) mĩ thuật lớp 8 chân trời sáng tạo bản 1
- Giải bài tập sách bài tập (SBT) mĩ thuật lớp 8 chân trời sáng tạo bản 2
- Giải bài tập sách bài tập (SBT) hoạt động trải nghiệm lớp 8 chân trời sáng tạo bản 1
- Giải bài tập sách bài tập (SBT) hoạt động trải nghiệm lớp 8 chân trời sáng tạo bản 2
Soạn sách bài tập (SBT) lớp 8 cánh diều
- Soạn sách bài tập (SBT) ngữ văn lớp 8 tập 1 cánh diều
- Soạn sách bài tập (SBT) ngữ văn lớp 8 tập 2 cánh diều
- Giải bài tập sách bài tập (SBT) toán lớp 8 cánh diều
- Giải bài tập sách bài tập (SBT) toán lớp 8 tập 1 cánh diều
- Giải bài tập sách bài tập (SBT) toán lớp 8 tập 2 cánh diều
- Giải bài tập sách bài tập (SBT) khoa học tự nhiên lớp 8 cánh diều
- Giải bài tập sách bài tập (SBT) hóa học lớp 8 cánh diều
- Giải bài tập sách bài tập (SBT) vật lí lớp 8 cánh diều
- Giải bài tập sách bài tập (SBT) sinh học lớp 8 cánh diều
- Giải bài tập sách bài tập (SBT) lịch sử và địa lí lớp 8 cánh diều
- Giải bài tập sách bài tập (SBT) công dân lớp 8 cánh diều
- Giải bài tập sách bài tập (SBT) công nghệ lớp 8 cánh diều
- Giải bài tập sách bài tập (SBT) tin học lớp 8 cánh diều
- Giải bài tập sách bài tập (SBT) âm nhạc lớp 8 cánh diều
- Giải bài tập sách bài tập (SBT) mĩ thuật lớp 8 cánh diều
- Giải bài tập sách bài tập (SBT) hoạt động trải nghiệm lớp 8 cánh diều